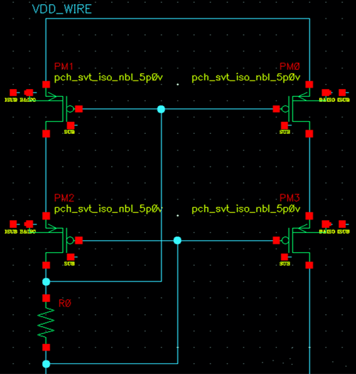
共源共柵電流鏡

如圖所示,令左路電流為10u,PM1和PM0寬長比相同,則由電流鏡定律,右側電流也為10u,目標:設計較為精確的電流鏡,要求輸出(PM3漏端)電壓>VDD-0.6
采用1830工藝
由于輸出電壓>VDD-0.6,因此Vdsat0+Vdsat3<0.6
采用1:1復制,PM1與PM0寬長比相同,為保證PM1與PM0漏壓相等,PM2與PM3尺寸相同。0.6V壓降平均分給PM0與PM3,為保證設計余量,取Vdsat=0.25V
由于飽和時,Vgs-Vth<Vdsat,因此Vsat1=Vsat2=Vsat3=Vsat0=根號(2Id/K(W/L))<0.25
K取40uA/V^2,可得W/L=8
由于PM1與PM0必須良好匹配,溝長調制效應要小,取最小溝長6倍,3um,W1,2=24um
PM2與PM3以減小面積準則,溝長取1.5u,W=12u
計算R:Vsg1+VR-Vsg3-Vsd1=0=Vsg1+VR-Vsg3-0.3
R=0.3/10u=30K


由直流仿真看到采用共源共柵電流鏡的方式復制的電流精度遠高于PMOS電流鏡精度。
〈烜芯微/XXW〉專業制造二極管,三極管,MOS管,橋堆等,20年,工廠直銷省20%,上萬家電路電器生產企業選用,專業的工程師幫您穩定好每一批產品,如果您有遇到什么需要幫助解決的,可以直接聯系下方的聯系號碼或加QQ/微信,由我們的銷售經理給您精準的報價以及產品介紹
聯系號碼:18923864027(同微信)
QQ:709211280

